
◇Connecting with Schneider RM6
◇Fully insulation PT scheme
◇Configuring without three-position switch
◇The capacity of voltage transformer can reach 3000VA
connecting with Schneider RM6
Voltage class: 12/24
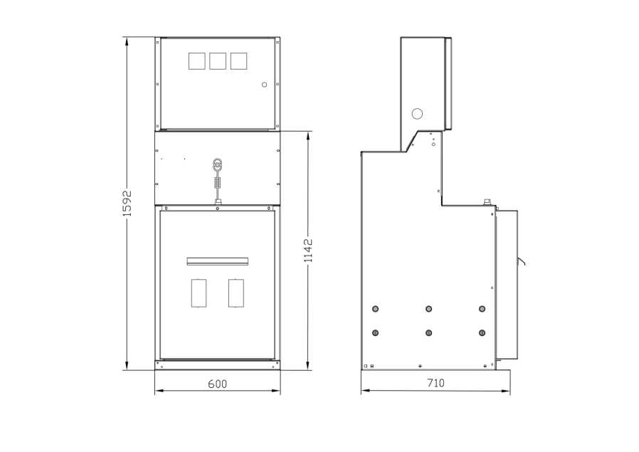
Size: 600*710*1592
Insulation: Fully Insulated
Maximum capacity: 12kV 3000VA / 4kV 1500VA

